3月26日-28日,“2019中国国际城市停车产业博览会”与“2019第四届中国国际电动汽车充电基础设施展览会”两展合力,将在北京 ・ 中国国际展览中心(静安庄馆)举办。同期举办“国际停车北京峰会暨中国城市公共交通协会城市停车分会成立大会”、“智慧停车+安全防范论坛暨中国城市公共交通协会安全防范分会成立大会”、“第二届中国城市交通充电设施论坛”。
届时,博览会将汇聚200家行业品牌企业于一堂,展示停车全产业链的新技术、新产品以及全新解决方案。其中,北京中岩智泊科技有限公司将携带最新技术和产品盛装出席博览会。

北京中岩智泊科技有限公司 展位号:3号馆3018
一、走进中岩智泊:悦人达己 创新卓越
北京中岩智泊科技有限公司旨在为客户提供“一站式智能停车开发建设解决方案”,具体提供如下四大服务内容:
1、基于城市核心区地下空间开发的地下智能立体停车库建设、各类型地上智能立体停车库建设;
2、集交通设计、引导设计、基础设计于一体的停车场设计规划咨询;
3、借助停车APP、互联网云平台、智慧停车技术的停车场智能运营管理;
4、组合运用多种金融工具来提供投前融资、建设期投资、投后持有或者退出等全流程投资金融服务。
针对城市核心区土地稀缺、停车资源匮乏的现状,中岩泊车使出浑身解数,充分挖潜利用地下空间资源建设地下立体停车库,目前已研发出“装配式+自下沉沉井”地下立体车库、地下室增层立体车库、四合院井筒式立体车库、暗挖增扩式立体车库、路下隧道式立体车库、地下智能立体自行车库等众多特色产品,为解决停车难开辟了新途径。
中岩智泊集合最领先的技术资源和团队优势,全心全意打造出令客户满意的智能车库产品。中岩大地本着“悦人达己、创新卓越”的企业理念,愿和各界朋友一起携手,共创美好的明天!

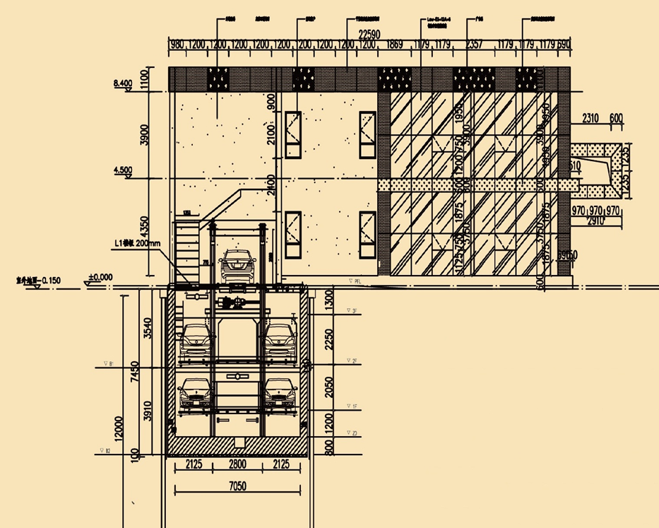
中岩智泊地下车库案例
二、中岩智泊产品介绍
特色产品一:暗挖增扩式立体车库

特色产品二:地下井筒式立体车库1

特色产品二:地下井筒式立体车库2

特色产品二:地下井筒式立体车库3

施工视频二维码链接

特色产品三:地下室增层立体车库

特色产品四:路下隧道式立体车库1

特色产品四:路下隧道式立体车库2

特色产品五:地下自行车库立体车库1

特色产品五:地下自行车库立体车库2

三、中岩智泊邀您莅临展位3018参观洽谈
2019年3月26-28日,欢迎您莅临北京·中国国际展览中心(静安庄馆)3号馆3018,北京中岩智泊科技有限公司展位,参观交流、洽谈合作。
更多中岩智泊信息,登陆官网查看:www.zydd.com
四、欢迎报名参观中岩智泊
本届博览会免费向业界专业人士开放,可通过微信公众号预登记,免费参观、参会。详情咨询:010-84600657-676。

提前报名,免费参观;识别二维码,10秒完成注册